Ecrit le 16 d ?cembre 2020
Mardi 8 d ?cembre, rendez-vous ? Roug ? sur le terrain o ? se trouvait, il y a environ 10 ans, le magasin Terrena. Avec le maire Jean Michel Duclos, l’adjoint aux finances Christian Gautier, et Yves Palierne, conseiller d ?l ?gu ? ? la communication.
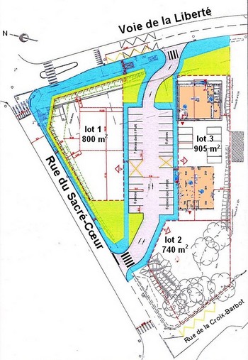
Sur ce terrain de 4200 m ?, la municipalit ? pr ?c ?dente avait un double projet ? : un p ?le petite-enfance et un p ?le sant ?, en deux b ?timents modulaires de 180 m ? chacun. Mais cela n ?cessitait une modification du Plan Local d’Urbanisme, op ?ration lanc ?e mais stopp ?e avant l’enqu ?te publique.
Achet ? 63 000 ?, le terrain ?tait occup ? par un hangar qu’il a fallu d ?construire pour 40 000 ?. Un permis de construire avait ?t ? accord ?. Et des march ?s sign ?s. Mais le projet engag ? par l’ancienne municipalit ? a pris du retard suite ? la crise sanitaire, au d ?p ?t d’un permis modificatif et ? des demandes de raccordement non effectu ?es. En mars 2020, une nouvelle ?quipe a pris les r ?nes de la mairie et a repris le dossier en le modifiant dans la limite de ce qui ?tait possible.
En ce qui concerne le p ?le petite-enfance, le nouveau maire a fait valoir que la commune dispose d ?j ?? de nombreux b ?timents, notamment l’Espace Arc-En-Ciel, d ?di ? ? l’accueil p ?riscolaire et au relais d’assistantes maternelles, id ?alement situ ? entre les deux ?coles et ? proximit ? de la cantine. « ?Nous souhaitons donc conserver ce p ?le tout en am ?nageant la Rue de la Croix-Barbot afin qu’il y ait plus de fluidit ? et de s ?curit ?? ? » dit-il.
En ce qui concerne le p ?le sant ?, « ?nous souhaitons ?laborer un permis d’am ?nager permettant de faire quatre lots pouvant accueillir des m ?decins, des infirmi ?res, des professionnels param ?dicaux ? ? ». Une nouvelle demande de permis de construire a ?t ? d ?pos ?e.
Le lot 3, sur 905 m ? accueillera deux b ?timents modulaires de 180 m ? chacun, et huit parkings pour le personnel. Les locaux seront lou ?s ? 5 ?/m ?.
Le lot 2, de 740 m ?, n’est pas am ?nageable tout de suite car il y a une canalisation ? d ?placer. Sa destination n’est pas d ?finie.
Le lot 1, de 800 m ?, sera disponible ? la vente. Le reste de la parcelle reste dans le domaine public pour les espaces, les parkings, la voirie, entre la rue de la Lib ?ration (route de Rennes) et la rue du Sacr ?-cœur, plus tranquille, qui rejoint la Rue de la Croix-Barbot et le centre-bourg.
Dans un premier temps le p ?le de sant ?, dont la livraison est pr ?vue d ?but d’ann ?e 2022, accueillerait l’OPASS (centre de soins infirmiers), deux infirmi ?res lib ?rales, une osth ?opathe et un orthophoniste, en esp ?rant un jour accueillir des m ?decins si la CPTS (Communaut ? Professionnelle de Territoire de Sant ?) peut en attirer. En laissant aussi la possibilit ? d’installer la pharmacie.
d’autres nouvelles de Roug ?
Roug ?, c’est un bourg vivant gr ?ce ? ses commerces de proximit ?, ses deux ?coles et ? son tissu associatif dynamique. Les Roug ?ens et Roug ?ennes profitent ?galement d’une campagne verdoyante ponctu ?e d’ ?tang, de bois et de sites historiques. Pour le plaisir des randonneurs, la voie verte voit son d ?part ? l’ancienne gare de la commune.
Entour ?e par les communes de Ferc ?, Soulvache, Villep ?t et Noyal-sur-Brutz, Roug ? se situe ? 10 km au nord-ouest de Ch ?teaubriant. Elle b ?n ?ficie ainsi des ?quipements et animations de l’intercommunalit ? : th ??tre de Verre, m ?diath ?que et son r ?seau de biblioth ?ques, centre aquatique Aqua-Choisel, visites du patrimoine, randonn ?es, traditionnelle foire de B ?r ? Elle est dot ?e d’une maison de retraite dynamique qui sera r ?am ?nag ?e en 2022.
Une pr ?- ?tude d’am ?nagement des rues du bourg a ?t ? lanc ?e. De nombreux travaux de mise aux normes des lignes ?lectriques et de l’ ?clairage public devront ?tre r ?alis ?s.
Le lotissement des Cohardi ?res est bien avanc ?. Les logements construits par Habitat 44 seront livr ?s en d ?but d’ann ?e 2021.
Une structure de loisirs a ?t ? command ?e pour l’ ?cole par la municipalit ? pr ?c ?dente, pour 12 000 ? mais sa dimension n’a pas ?t ? v ?rifi ?e et elle ne peut ?tre install ?e dans la cour de l’ ?cole. Un autre lieu est recherch ?.
Un exercice d’incendie a eu lieu ? l’ ?cole publique mais la classe dans la cour de maternelle n’a pas entendu le signal ?!
Certains compte-rendus des conseils municipaux de Roug ? sont en pdf-image et donc non accessibles aux personnes en d ?ficience visuelle. Souhaitons que Zoan, qui va refaire le site internet, y veille tout particuli ?rement.
Adeline Poilvez
A Roug ?, le directeur g ?n ?ral des services, M. Richter, a pris sa retraite en juillet. Son remplacement n’avait pas ?t ? anticip ?. Il a donc fallu attendre.
Depuis le 1er d ?cembre 2020, Adeline Poilvez est la nouvelle DGS. Elle a pos ? sa candidature ? Roug ? apr ?s un riche parcours professionnel ? :
– six ans dans le milieu ferroviaire avec des postes de responsabilit ?.
– puis reprise des ?tudes ? : Droit Public, Droit de la commande publique.
– un an et demi en r ?gion parisienne dans une commune : puis deux ans ? la Com’Com’ Ch ?teaubriant-Derval comme juriste, organisation du service des March ?s Publics, analyse fonctionnelle des besoins, rendez-vous mensuels avec les entreprises, gestion des contentieux...
« ?Dans un contexte de rationalisation des co ?ts et de prise en compte de nouveaux objectifs, le juriste de la commande publique n’a plus seulement ? s’assurer de la l ?galit ? du contrat mais il doit l’int ?grer dans une perspective plus large, prendre en compte des objectifs politiques, ?conomiques tout en respectant les obligations impos ?es par un droit en perp ?tuelle ?volution ? ? ». dit-elle.
Loin de rester enferm ?e dans les pages des livres de Droit, Adeline aime partager avec les personnes qui l’entourent. « ?A cette soif de d ?couvrir s’ajoute une certaine passion pour r ?gler les probl ?mes par la recherche d’une solution adapt ?e et une prise de d ?cision efficace. port ?e par un go ?t certain pour les challenges intellectuels et techniques, je suis pr ?te ? relever de nouveaux d ?fis ? ».
On dit d’elle qu’elle a un profil « ?atypique ? » . « ?J’ai beaucoup d’attachement au service public, et plus particuli ?rement le service public de proximit ? car c’est du » ?concret ?« construction d’un p ?le de sant ?, r ?habilitation d’une maison des associations, restauration scolaire privil ?giant les produits locaux il n’y a pas beaucoup d’autres structures qui permettent autant d’agir sur le quotidien et pour le bien des autres. A Roug ?, l’ ?quipe pr ?sentait un projet autour du d ?veloppement durable, de la concertation citoyenne et de la solidarit ?, valeurs auxquelles je suis particuli ?rement attach ?e. J’ai senti que c’ ?tait un poste o ? je pourrais m’ ?panouir professionnellement avec des ?lus dynamiques ? »

